G r e g   M i x
& A s s o c i a t e s  A r c h i t e c t s  I nc  A.I.A.
A Studio of Southeast Studios Inc.   gregmix@comcast.net   770-806-8866

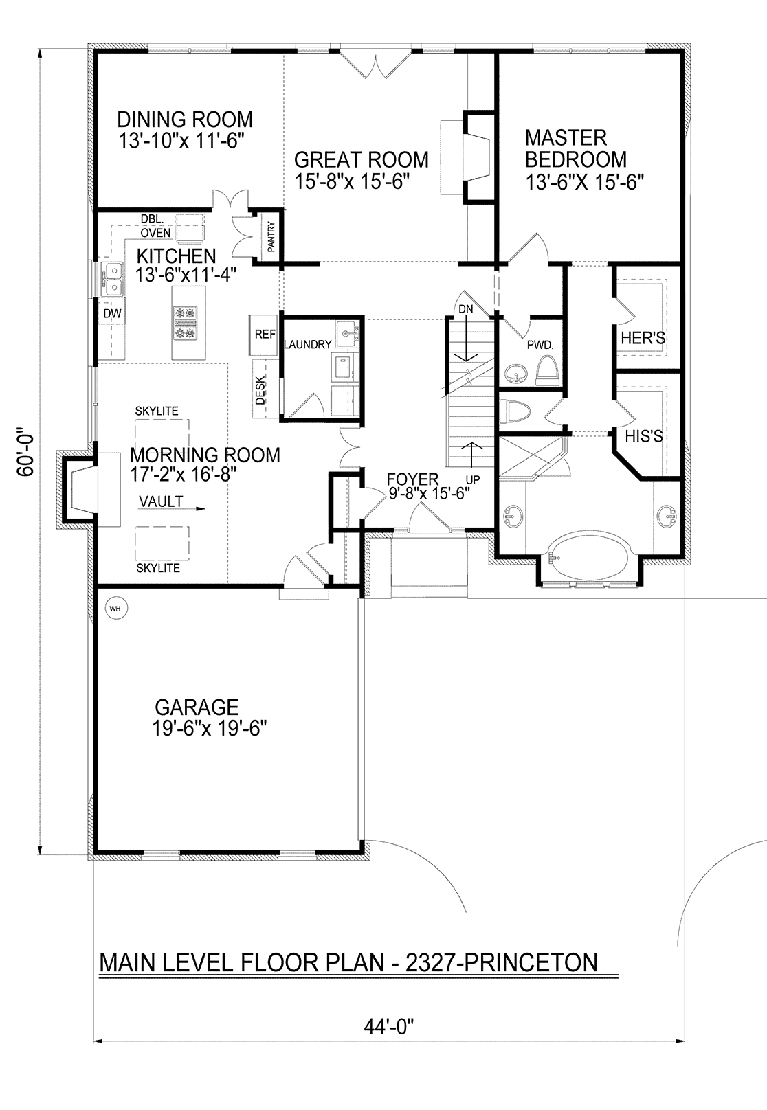
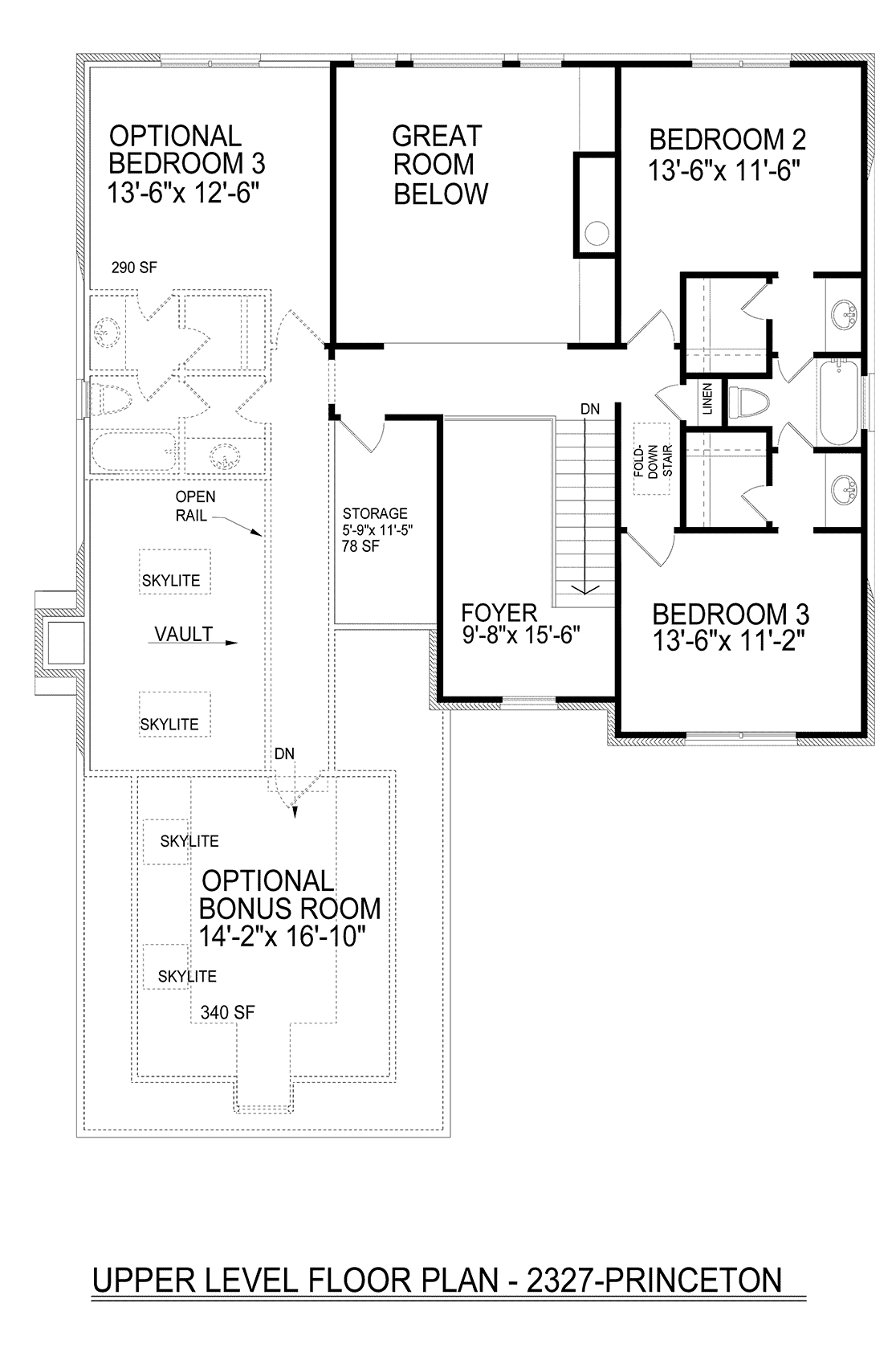
The Princeton - 2327 s.f.
Call or e-mail for purchase information
©  Copyright   G r e g   M i x
& A s s o c i a t e s 
A r c h i t e c t s  I nc  A.I.A.
Home   Customs    Renovations   About   Design Process  Why You I need a Survey  Stock Plans