G r e g   M i x
& A s s o c i a t e s  A r c h i t e c t s  I nc  A.I.A.
A Studio of Southeast Studios Inc.   gregmix@comcast.net   770-806-8866

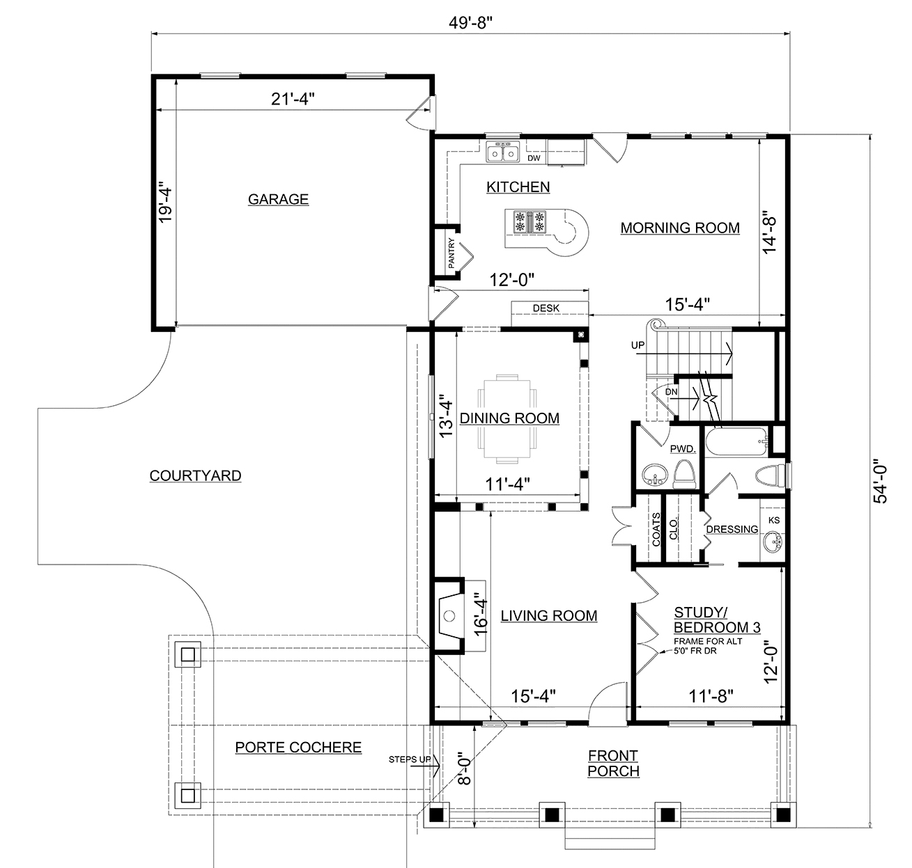
The Bungalow With a Garage - 2345 s.f.
Call or e-mail for purchase information
Second Floor Plan - 1057 s.f.
©  Copyright   G r e g   M i x
& A s s o c i a t e s 
A r c h i t e c t s  I nc  A.I.A.
First Floor Plan - 1288 s.f.
Home   Portfolio    Renovations   About   Design Process   Stock Plans