G r e g   M i x
& A s s o c i a t e s  A r c h i t e c t s  I nc  A.I.A.
A Studio of Southeast Studios Inc.   gregmix@comcast.net   770-806-8866

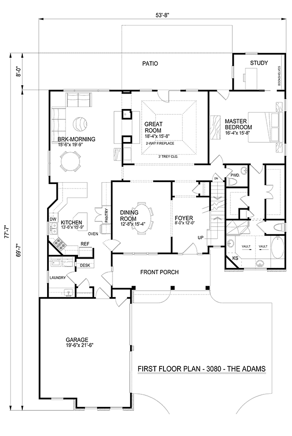
3080 s.f. - The Adams
Call or e-mail for purchase information
©  Copyright   G r e g   M i x
& A s s o c i a t e s 
A r c h i t e c t s  I nc  A.I.A.
First Floor Plan - 2108 s.f.
Second Floor Plan - 972 s.f.
Home   Portfolio    Renovations   About   Design Process   Stock Plans